Urduliz-eko udaleko 27 etxebizitzako kooperatiba. 60m²-en eta, garajearekiko 125m²-en artetik etxebizitzak, trastelekua eta terraza edo funtzioko lurra. Bateko etxebizitzak, bi eta hiru logela.
Deskribapena
Planta Baja
Primera Planta
Segunda Planta
Tercera Planta
Memoria de calidades
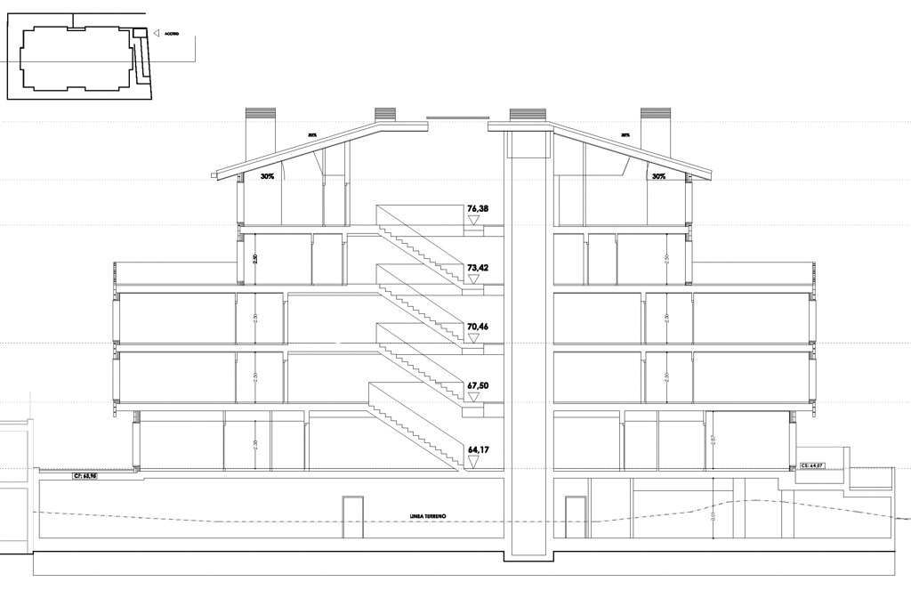
Cubierta
El sistema de evacuación de aguas pluviales se realizará mediante canalón perimetral de cobre, y bajantes de cobre, al ser esta una solución constructiva más efectiva y con un resultado estético acorde con el diseño del edificio.
Terrazas
Carpinterias exteriores
Los alféizares, dinteles y mochetas se definirán en el proyecto de ejecución para dar unidad a toda la fachada.
Carpinterias interiores
La tarima interior de las diferentes habitaciones excepto baños y cocinas se realizará de madera de elondo y rodapié de sapelly.
Techos interiores
Los cuartos húmedos, cocinas, recibidor y el pasillo contarán con falso techo descolgado de de escayola y el resto mediante enlucido de escayola.
En las paredes y techos se emplearán pinturas plásticas de calidad con un elegante acabado liso.
Suelos de cocinas, baños, tendederos y terrazas
Paredes de baños y cocina
Los sanitarios de los baños serán de la marca Roca o similar, empleándose sus series Victoria, Dalma, o Malta, con un elegante acabado en porcelana esmaltada blanca.
La grifería de los lavabos será de tipo monomando de la marca Roca modelo Victoria plus o similar, con características similares a los utilizados en los sanitarios.
Soportal, portal y escaleras
El portal se utilizará piedra natural caliza tipo cenia en el solado, y con paredes pintadas en tonos claros que realcen este espacio de distribución del edificio.
El ascensor será eléctrico, con una generosa cabina de 1,40×1,10 metros. Con un acabado amplio y moderno.
Los distribuidores de cada planta serán espaciosos y amplios con el acceso de la escalera en el lateral, los acabados serán de baldosa cerámica antideslizante en solados ,y paredes y techos pintados en colores claros que ayuden a obtener espacios amplios e iluminados.
La escalera tendrá su solado con peldaños y zanquines de terrazo.
Estos espacios comunes del edificio contarán con rodapié cerámico.
Instalaciones de saneamiento
Los desagües de aparatos se realizarán en tubo de PVC y sifón individual hasta el manguetón y red y horizontal de PVC reforzado con una pendiente del 2% y bajo la solera convenientemente protegidos. Los pasos de tubos a través de muros y forjados dispondrán de pasatubos de PVC rígido. Según los cálculos realizados en la presente fase del proyecto, el diámetro necesario para evacuar las aguas sucias de los aparatos considerados en el proyecto es de 200mm.
Instalación de fontanería
Previo a cada vivienda, aparato y a cada local y se dispondrá una llave de paso, para conseguir una adecuada sectorización de la instalación que permita ejecutar reparaciones en los aparatos o la conducción sin tener que modificar el servicio en resto de la vivienda.
Como apoyo a la producción de ACS se colocan paneles captadores solares cuya contribución se traduce en la aparición de un interacumulador previo a la caldera situado en sala de calderas, de forma que el edificio satisface las necesidades exigidas por el Código Técnico de la Edificación en su apartado de eficiencia energética.
Instalación centralizada de calefacción y producción de ACS
Instalación de electricidad
– Reglamento Electrotécnico de baja tensión – Instrucciones complementarias del Ministerio de Industria.
La instalación de tierra dispondrá de los elementos que exige el Reglamento Electrotécnico para Baja Tensión e Instrucciones Complementarias del Ministerio de Industria MIE-BT-039 y MIE-BT-023.
Otros equipamientos de confort y seguridad
La puerta de entrada de cada vivienda será blindada con acabado en madera de sapelly, cerradura de seguridad y mirilla.
Garajes y trasteros
El acabado del suelo será mediante hormigón pulido de cuarzo corindón.
La puerta de acceso a garaje será motorizada y dispondrá de apertura por mando a distancia.
La zona de trasteros está compartimentada y cada trastero está cerrado mediante puerta con rejillas de ventilación para permitir una correcta ventilación de los mismos.
Urbanización
Las zonas ajardinadas estarán dotadas de una capa de tierra vegetal sobre la que habrá una plantación de césped.
El vallado perimetral de la parcela estará formado por un muro bajo sobre el que se aplicará un aplacado de piedra o similar a definir en el proyecto de ejecución, y sobre dicho muro se colocará un cierre de malla de simple torsión cubriendo el resto de la altura total, de forma que se garantice la privacidad de esas terrazas y jardines interiores.













